| 価格 | 3,098万円 |
|---|---|
| 管理費/修繕積立金 | なし / なし |
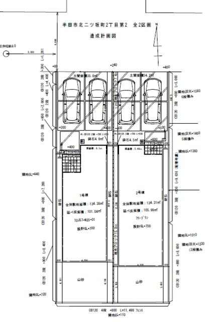
| 土地面積/建物面積 | 134.31m²/106.01m² |
| 間取り | 4SLDK |
| 所在地 | 愛知県半田市北二ツ坂町2丁目11-5 |
|---|---|
| 交通 | 名古屋鉄道河和線/知多半田駅 徒歩 23分 |
| 建物構造/築年数/階数 | 木造 / 2026年1月(新築)/ 2階建 |
| 価格 |
3,098万円
|
管理費/修繕積立金 | なし / なし |
|---|---|---|---|
| 土地権利 | 所有権 | 建物構造 | 木造 |
| 敷金 / 敷引 | なし / なし | 保証金 / 償却金 | なし / なし |
| 礼金 | なし | その他費用 / その他ランニングコスト |
【その他費用】 なし 【その他ランニングコスト】 なし |
| 階数 | 2階 | 駐車場 | |
| 敷地面積 | 134.31m² | バルコニー面積 | - |
| 私道負担面積 | - | 住宅保険 | - |
| 建ぺい率/容積率 | 60% / 200% | 用途地域/都市計画 | 1種中高 / 市街化区域 |
| 地勢/地目 | - / 宅地 | 最適用途 | - |
| 接道状況 | 北 6.0m 公道 接面:5.7m | ||
| 国土法届出 | - | 建築確認 | - |
| 現況 | 建築中 | 引渡し | 相談 |
| 建物状況調査 (インスペクション) |
- | 取引態様 | 一般媒介 |
| リフォーム年月 | - | ||
| 学校名 | 指定なし ※学校名はあくまで目安になります。詳細は別途ご確認ください。 |
||
| 情報登録日 | 2025/08/09 | 情報更新日 | 2026/04/22 |
| 建物設備 |
|
|---|
| 特記事項 |
|
|---|
| 備考 |
|
|---|
| 住所 | 知多郡武豊町字六貫山2ー40ー1 |
|---|---|
| 電話番号 | 0569-73-7396 |
| FAX | 0569-73-7497 |
| ホームページ | http://hirano-f.com |
| メールアドレス | info@hirano-f.com |
| 営業時間 | 10:00~18:00 |
| 定休日 | 水曜日、祝日 |
| 免許番号 | 愛知県知事免許 (3) 第0022133号 |
| 業種および取扱業務 | 売買仲介、賃貸仲介、開発・分譲、不動産コンサルティング、賃貸不動産管理、リフォーム・リノベーション、解体、相続相談、住宅ローン相談、空き家相談、任売・競売 |
平野 友基
不動産の事なら何でもご相談ください!
宅建士、不動産コンサルティングマスター、不動産キャリアパーソン