| 賃料/管理費/共益費 | 19.8万円 /(なし)/(11,000円) |
|---|---|
| 敷金/礼金 | なし / 1ヶ月 |
| 専有面積 | 102.69m² |
| 間取り | - |
| 所在地 | 愛知県名古屋市守山区桔梗平1丁目2401 |
|---|---|
| 交通 |
その他交通手段:神領/JR中央線 |
| 建物構造/築年数/階数 | RC / 2013年4月(中古)/ 2階建 |
| 賃料/管理費/共益費 |
19.8万円 /(なし)/(11,000円)
|
||
|---|---|---|---|
| 敷金 / 敷引 | なし / なし | 保証金 / 償却金 | 3ヶ月 / なし |
| 礼金 / 権利金 / 造作譲渡 | 1ヶ月 / なし / なし | その他費用 / その他ランニングコスト |
【その他費用】 なし 【その他ランニングコスト】 なし |
| 土地権利 | - | 契約期間/借地期間 | 5年 / - |
| 建ぺい率/容積率 | - / - | 用途地域/都市計画 | 準住居 / - |
| 地勢/地目 | - / - | 最適用途 | - |
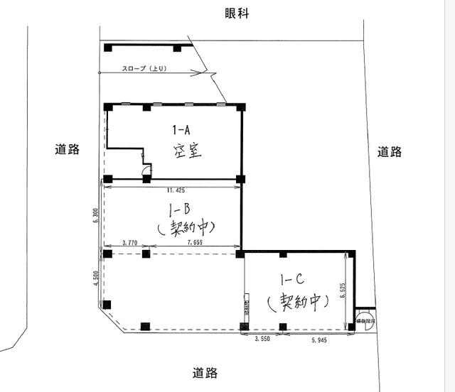
| 接道状況 |
東 26.4m 公道 接面:24.5m 西 6.0m 公道 接面:24.5m 南 6.0m 公道 接面:23.5m |
||
| 保証会社 | - | 住宅保険 | |
| 学校名 | 吉根小学校 ※学校名はあくまで目安になります。詳細は別途ご確認ください。 |
||
| 情報登録日 | 2026/02/28 | 情報更新日 | 2026/04/16 |
| 建物設備 |
|
|---|
| 特記事項 |
|
|---|
| 備考 |
|
|---|
| 住所 | 名古屋市守山区吉根2ー2615 |
|---|---|
| 電話番号 | 052-736-5006 |
| FAX | 052-736-6456 |
| 免許番号 | 愛知県知事免許 (12) 第0011526号 |