| 賃料/管理費/共益費 | 20.9万円 /(なし)/(22,000円) |
|---|---|
| 敷金/礼金 | なし / なし |
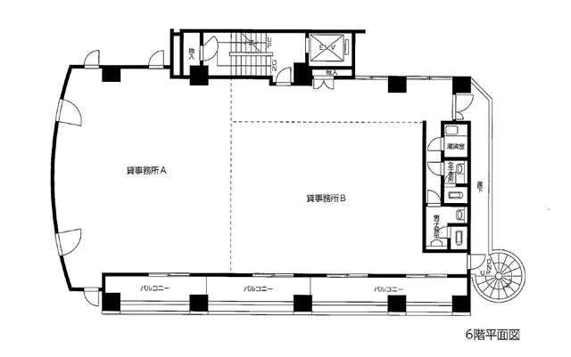
| 専有面積 | 109.52m² |
| 間取り | ワンルーム |
| 所在地 | 愛知県瀬戸市栄町26 |
|---|---|
| 交通 | 名古屋鉄道瀬戸線/尾張瀬戸駅 徒歩 4分 |
| 建物構造/築年数/階数 | SRC / 1986年12月(中古)/ 8階建 |
| 賃料/管理費/共益費 |
20.9万円 /(なし)/(22,000円)
|
||
|---|---|---|---|
| 敷金 / 敷引 | なし / なし | 保証金 / 償却金 | 2ヶ月 / 100% |
| 礼金 / 権利金 / 造作譲渡 | なし / なし / なし | その他費用 / その他ランニングコスト |
【その他費用】 駐輪場・バイク駐車保:2,000円 【その他ランニングコスト】 なし |
| 土地権利 | - | 契約期間/借地期間 | 3年 1ヶ月 / - |
| 建ぺい率/容積率 | - / - | 用途地域/都市計画 | 商業地域 / - |
| 地勢/地目 | - / - | 最適用途 | - |
| 接道状況 | 南 8.0m 公道 接面:13.4m | ||
| 保証会社 | - | 住宅保険 | 1年 15,000円 |
| 学校名 | 道泉小学校 ※学校名はあくまで目安になります。詳細は別途ご確認ください。 |
||
| 情報登録日 | 2026/03/04 | 情報更新日 | 2026/03/04 |
| 建物設備 |
|
|---|
| 特記事項 |
|
|---|
| 備考 |
|
|---|
| 住所 | 瀬戸市緑町2ー1 パレスグリーン1F |
|---|---|
| 電話番号 | 0561-21-6406 |
| FAX | 0561-84-7121 |
| 免許番号 | 愛知県知事免許 (10) 第0013512号 |