愛知の不動産探すなら あいぽっぽ > 検索条件 > 検索結果一覧 > 詳細情報

 詳細情報 愛知県豊田市乙部ケ丘3丁目

中古売戸建住宅

愛知県豊田市乙部ケ丘3丁目

価格 2,880万円
管理費/修繕積立金 なし / なし
土地面積/建物面積 203.40m²/112.22m²
主要採光面
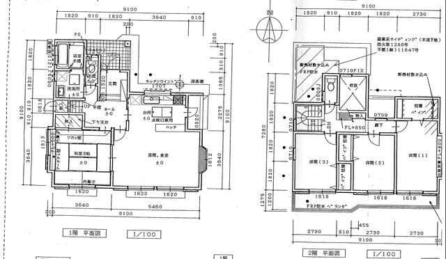
間取り 4LDK(和 8 洋 6・6・7.6)
所在地 愛知県豊田市乙部ケ丘3丁目15-21
交通 愛知環状鉄道/保見駅 徒歩 33分
建物構造/築年数/階数 木造 / 2001年1月(中古)/ 2階建

物件詳細情報

価格
2,880万円
管理費/修繕積立金 なし / なし
土地権利 所有権 建物構造 木造
敷金 / 敷引 なし / なし 保証金 / 償却金 なし / なし
礼金 なし その他費用 /
その他ランニングコスト
【その他費用】
なし
【その他ランニングコスト】
なし
階数 2階 駐車場
敷地面積 203.40m² バルコニー面積 -
私道負担面積 - 住宅保険 -
建ぺい率/容積率 60% / 100% 用途地域/都市計画 1種低層 / 市街化区域
地勢/地目 雛段 / 宅地 最適用途 -
接道状況 北 6.0m 公道 接面:11.3m
国土法届出 - 建築確認
現況 所有者居住中 引渡し 相談
建物状況調査
(インスペクション)
- 取引態様 一般媒介
リフォーム年月 -
学校名 東保見小学校
※学校名はあくまで目安になります。詳細は別途ご確認ください。
情報登録日 2023/02/24 情報更新日 2026/03/22

建物設備

建物設備
  • 都市ガス
  • 電気
  • 上水道
  • 下水道
  • 側溝
  • エアコン
  • トイレ2箇所
  • ウォークインクローゼット
  • 照明器具付き
  • TVモニタ付きインターホン
  • ウッドデッキ
  • 出窓

特記事項

特記事項
  • 駐車場2台分

備考

備考
    1階に12.26畳の広いLDに約6畳のキッチンと8畳の和室、2階に3部屋の洋間があります。イワクラゴールデンホームのモデルハウスなので、玄関が吹き抜けになっています。

地図情報

物件状況を問い合わせる

不動産業者情報

㈱アタシェガモウ

住所 豊田市小坂町8ー60
電話番号 0565333367
FAX 050-3737-7389
ホームページ https://www.athome.co.jp/ahcb/attachergamou.html
メールアドレス attacher2009@gmail.com
営業時間
定休日 日曜日
免許番号 愛知県知事免許 (4) 第0021782号
業種および取扱業務 売買仲介、賃貸仲介、不動産コンサルティング、賃貸不動産管理、リフォーム・リノベーション、相続相談、住宅ローン相談、空き家相談
AIG損害、損保ジャパン代理店 FWD生命募集代理店
蒲生和高

蒲生和高

宅建士、賃貸不動産経営管理士、ファイナンシャルプランナー3級

© 2026 あいぽっぽ