愛知の不動産探すなら あいぽっぽ > 検索条件 > 検索結果一覧 > 詳細情報

 詳細情報 愛知県名古屋市西区山木1丁目

中古売戸建住宅

愛知県名古屋市西区山木1丁目

価格 1,380万円
管理費/修繕積立金 なし / なし
土地面積/建物面積 65.60m²/58.29m²
主要採光面 南東
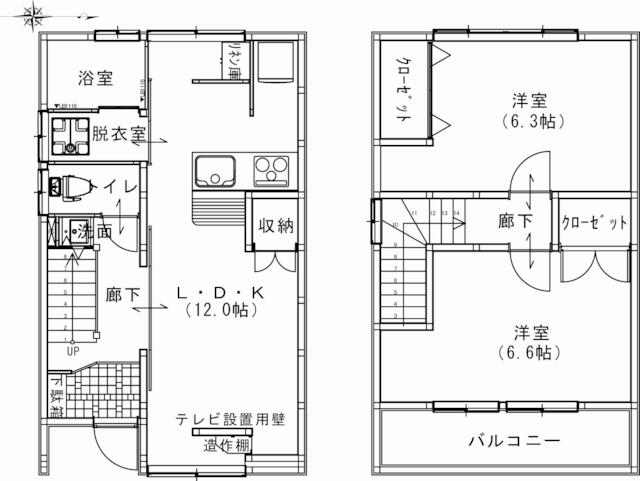
間取り 2LDK(洋 6.6・6.3 LDK 12)
所在地 愛知県名古屋市西区山木1丁目25-10
交通 名古屋市交通局鶴舞線/上小田井駅 徒歩 14分
名古屋鉄道犬山線/上小田井駅 徒歩 14分
建物構造/築年数/階数 木造 / 1976年11月(中古)/ 2階建

物件詳細情報

価格
1,380万円
管理費/修繕積立金 なし / なし
土地権利 所有権 建物構造 木造
敷金 / 敷引 なし / なし 保証金 / 償却金 なし / なし
礼金 なし その他費用 /
その他ランニングコスト
【その他費用】
なし
【その他ランニングコスト】
なし
階数 2階 駐車場
敷地面積 65.60m² バルコニー面積 -
私道負担面積 - 住宅保険 -
建ぺい率/容積率 60% / 200% 用途地域/都市計画 工業地域 / 市街化区域
地勢/地目 - / 宅地 最適用途 -
接道状況 南東 私道
国土法届出 - 建築確認 -
現況 賃貸中 引渡し 相談
建物状況調査
(インスペクション)
- 取引態様 売主
リフォーム年月 2020/09
学校名 指定なし
※学校名はあくまで目安になります。詳細は別途ご確認ください。
情報登録日 2023/10/31 情報更新日 2026/04/12

建物設備

建物設備
  • プロパンガス
  • 追焚機能
  • 温水洗浄便座
  • システムキッチン
  • カウンターキッチン
  • IHクッキングヒーター
  • 照明器具付き
  • 複層ガラス
  • カードキー
  • ウッドデッキ
  • 火災警報器(報知機)

特記事項

特記事項
  • バリアフリー
  • 5年以内に水回り設備交換
  • 5年以内に内装リフォーム
  • (戸建のみ)その他リフォーム

備考

備考
物件状況を問い合わせる

不動産業者情報

株式会社 永冨

住所 名古屋市西区大野木4ー26 4F
電話番号 052-502-3800
FAX 052-502-3810
ホームページ https://www.nagatomi-kentiku.co.jp/
メールアドレス info@nagatomi-kentiku.co.jp
交通 名古屋市営地下鉄鶴舞線 庄内緑地公園駅 徒歩15分
営業時間 10:00~19:00
定休日 日・祝(所定休日あり)
免許番号 愛知県知事免許 (4) 第0020487号
業種および取扱業務 売買仲介、賃貸仲介、注文住宅販売、賃貸不動産管理、リフォーム・リノベーション、建築、住宅ローン相談、空き家相談、古民家再生、シェアハウス・民泊
株式会社永冨

株式会社永冨

© 2026 あいぽっぽ