| 価格 | 1,300万円 |
|---|---|
| 管理費/修繕積立金 | なし / なし |
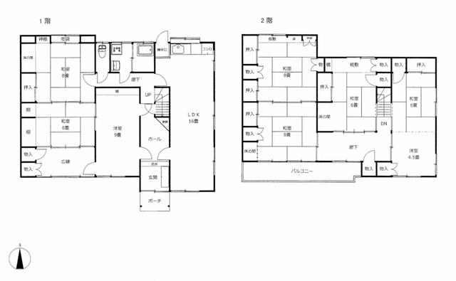
| 土地面積/建物面積 | 297.94m²/99.63m² |
| 間取り | 7LDK |
| 所在地 | 愛知県新城市平井字野地1番39、1番41 |
|---|---|
| 交通 |
飯田線/茶臼山駅 徒歩 8分 飯田線/東新町駅 徒歩 10分 |
| 建物構造/築年数/階数 | 木造 / 1969年2月(中古)/ 2階建 |
| 価格 |
1,300万円
|
管理費/修繕積立金 | なし / なし |
|---|---|---|---|
| 土地権利 | 所有権 | 建物構造 | 木造 |
| 敷金 / 敷引 | なし / なし | 保証金 / 償却金 | なし / なし |
| 礼金 | なし | その他費用 / その他ランニングコスト |
【その他費用】 なし 【その他ランニングコスト】 なし |
| 階数 | 2階 | 駐車場 | |
| 敷地面積 | 297.94m² | バルコニー面積 | - |
| 私道負担面積 | - | 住宅保険 | - |
| 建ぺい率/容積率 | 60% / 200% | 用途地域/都市計画 | 2種中高 / 市街化区域 |
| 地勢/地目 | 平坦 / 宅地 | 最適用途 | - |
| 接道状況 | 北 4.6m 公道 接面:18.0m | ||
| 国土法届出 | - | 建築確認 | - |
| 現況 | 空家 | 引渡し | 相談 |
| 建物状況調査 (インスペクション) |
- | 取引態様 | 専任媒介 |
| リフォーム年月 | - | ||
| 学校名 | 東郷西小学校 ※学校名はあくまで目安になります。詳細は別途ご確認ください。 |
||
| 情報登録日 | 2025/04/08 | 情報更新日 | 2026/04/13 |
| 建物設備 |
|
|---|
| 特記事項 |
|
|---|
| 備考 |
|
|---|
| 住所 | 新城市庭野字東萩野20番地 |
|---|---|
| 電話番号 | 0536-23-5809 |
| FAX | 0536-23-2715 |
| ホームページ | https://www.sankyo-sankyo.com |
| メールアドレス | info@sankyo-sankyo.com |
| 交通 | JR飯田線「新城」駅、新城Sバス 中宇利線「庭野」停 |
| 営業時間 | 8時半~18時半 |
| 定休日 | 年末年始、夏季、GW以外は年中無休 |
| 免許番号 | 愛知県知事免許 (10) 第0013504号 |
| 業種および取扱業務 | 売買仲介、賃貸仲介、開発・分譲、注文住宅販売、賃貸不動産管理、リフォーム・リノベーション、建築、解体、相続相談、住宅ローン相談、空き家相談、任売・競売 |
関原克彦
宅建士
関原浩史
宅建士
永井善章
宅建士