| 価格 | 760万円 |
|---|---|
| 管理費/修繕積立金 | なし / なし |
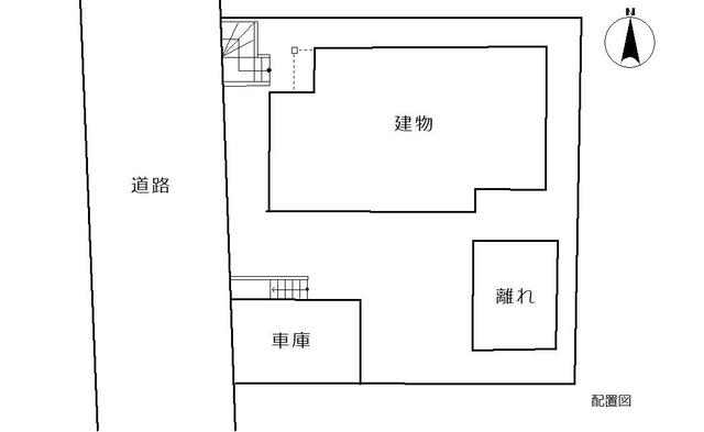
| 土地面積/建物面積 | 206.98m²/76.17m² |
| 間取り | 5DK(和 6・6・6 洋 6・7.5 DK 6) |
| 所在地 | 愛知県犬山市大字前原字向屋敷95-250 |
|---|---|
| 交通 | 名古屋鉄道小牧線/羽黒駅 徒歩 38分 |
| 建物構造/築年数/階数 | 軽量鉄骨造 / 1977年10月(中古)/ 2階建 |
| 価格 |
760万円
|
管理費/修繕積立金 | なし / なし |
|---|---|---|---|
| 土地権利 | 所有権 | 建物構造 | 軽量鉄骨造 |
| 敷金 / 敷引 | なし / なし | 保証金 / 償却金 | なし / なし |
| 礼金 | なし | その他費用 / その他ランニングコスト |
【その他費用】 なし 【その他ランニングコスト】 なし |
| 階数 | 2階 | 駐車場 | |
| 敷地面積 | 206.98m² | バルコニー面積 | - |
| 私道負担面積 | - | 住宅保険 | - |
| 建ぺい率/容積率 | 60% / 200% | 用途地域/都市計画 | 無指定 / 調整区域 |
| 地勢/地目 | 高台 / 宅地 | 最適用途 | - |
| 接道状況 | 西 6.0m 公道 接面:14.7m | ||
| 国土法届出 | 国土法届出中 | 建築確認 | - |
| 現況 | 空家 | 引渡し | 相談 |
| 建物状況調査 (インスペクション) |
- | 取引態様 | 一般媒介 |
| リフォーム年月 | - | ||
| 学校名 | 東小学校 ※学校名はあくまで目安になります。詳細は別途ご確認ください。 |
||
| 情報登録日 | 2025/04/23 | 情報更新日 | 2026/04/26 |
| 建物設備 |
|
|---|
| 特記事項 |
|
|---|
| 備考 |
|
|---|
| 住所 | 犬山市大字前原字井島11番地の3 |
|---|---|
| 電話番号 | 0120-55-3338 |
| FAX | 0568-68-3305 |
| ホームページ | https://shinken-home.net/ |
| メールアドレス | sinken1@mrh.biglobe.ne.jp |
| 交通 | 名鉄犬山線/犬山 徒歩25分 バス 15分 桜坪 停歩0分 |
| 営業時間 | 午前9時~午後6時 |
| 定休日 | 水曜日 |
| 免許番号 | 愛知県知事免許 (7) 第0017543号 |
| 業種および取扱業務 | 売買仲介、賃貸仲介、開発・分譲、注文住宅販売、不動産コンサルティング、賃貸不動産管理、マンション販売、リフォーム・リノベーション、建築、解体、相続相談、住宅ローン相談、空き家相談、任売・競売、古民家再生 |
代表取締役 棚橋 千津子
当社は犬山をはじめ、扶桑、大口、小牧などの愛知県から、可児、美濃加茂、関など岐阜県まで、幅広く取扱っています。 親切、丁寧な応対を心がけていますので、気になることはどんな事でも質問して頂ければと思います。 また、当社は買取も致しますので、お気軽にお問い合わせ下さい。
宅建士、不動産キャリアパーソン、建築士
渡邉 雄太郎
子育て真っ最中の5人家族のお父さんです。不動産に関する事はお気軽にお申し付け下さい
宅建士、不動産キャリアパーソン、空き家マイスター