愛知の不動産探すなら あいぽっぽ > 検索条件 > 検索結果一覧 > 詳細情報

 詳細情報 愛知県額田郡幸田町大字深溝字東舟山

中古売戸建住宅

愛知県額田郡幸田町大字深溝字東舟山

価格 4,180万円
管理費/修繕積立金 なし / なし
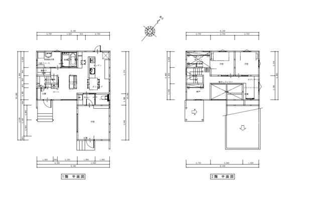
土地面積/建物面積 205.94m²/99.37m²
間取り 3SLDK
所在地 愛知県額田郡幸田町大字深溝字東舟山19-11
交通 東海道本線(JR東海)/三ケ根駅 徒歩 13分
建物構造/築年数/階数 木造 / 2021年10月(中古)/ 2階建

物件詳細情報

価格
4,180万円
管理費/修繕積立金 なし / なし
土地権利 所有権 建物構造 木造
敷金 / 敷引 なし / なし 保証金 / 償却金 なし / なし
礼金 なし その他費用 /
その他ランニングコスト
【その他費用】
なし
【その他ランニングコスト】
なし
階数 2階 駐車場
敷地面積 205.94m² バルコニー面積 -
私道負担面積 16.32m² 住宅保険 -
建ぺい率/容積率 60% / 200% 用途地域/都市計画 準工業 / 市街化区域
地勢/地目 - / 宅地 最適用途 -
接道状況 南西 8.0m 公道 接面:3.0m
国土法届出 - 建築確認 -
現況 所有者居住中 引渡し 相談
建物状況調査
(インスペクション)
- 取引態様 専任媒介
リフォーム年月 -
学校名 深溝小学校
※学校名はあくまで目安になります。詳細は別途ご確認ください。
情報登録日 2025/05/19 情報更新日 2026/03/15

建物設備

建物設備
  • 電気
  • 上水道
  • 下水道
  • エアコン
  • 追焚機能
  • 温水洗浄便座
  • ウォークインクローゼット
  • システムキッチン
  • カウンターキッチン
  • 食器洗浄乾燥機
  • IHクッキングヒーター
  • 照明器具付き
  • 複層ガラス
  • TVモニタ付きインターホン
  • 火災警報器(報知機)
  • 24時間換気システム

特記事項

特記事項
  • 閑静住宅街
  • バリアフリー
  • 駐車場3台分
  • 二世帯向き
  • オール電化
  • 吹抜
  • 建築確認完了検査済証
  • 新築時・増改築時の設計図書
  • 修繕・点検の記録

備考

備考

地図情報

物件状況を問い合わせる

不動産業者情報

アト・リエ

住所 岡崎市福岡町字入道7ー11
電話番号 0564-71-2539
FAX 0564-74-6817
免許番号 愛知県知事免許 (1) 第0024961号
© 2026 あいぽっぽ