愛知の不動産探すなら あいぽっぽ > 検索条件 > 検索結果一覧 > 詳細情報

 詳細情報 愛知県名古屋市北区柳原3丁目

貸マンション

愛知県名古屋市北区柳原3丁目

賃料 / 管理費 / 共益費 17万円 /(10,000円)/(なし)
敷金 / 礼金 なし / 1万円
専有面積 70.08m²
バルコニー面積
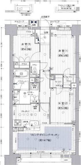
間取り 3LDK
所在地 愛知県名古屋市北区柳原3丁目
交通 名古屋市名城線/名城公園駅 徒歩 7分
名古屋市名城線/黒川駅 徒歩 10分
名鉄瀬戸線/清水駅 徒歩 14分
建物構造 / 築年数 / 2020年9月(中古)
階数 10階建 

物件詳細情報

賃料 / 管理費 / 共益費
17万円 /(10,000円)/(なし)
敷金 / 敷引 なし / なし 保証金 / 償却金 なし / なし
礼金 1万円 その他費用 /
その他ランニングコスト
【その他費用】
なし
【その他ランニングコスト】
なし
雑費 なし
鍵交換金額 なし
建物構造 所在階 / 階数 / 地下階 1階 / 10階 /
駐車場 総戸数 -
契約期間 / 借地期間 2年 / - 更新料 / 借地料 - / -
保証会社 - 住宅保険
現況 入居日 相談
建物状況調査
(インスペクション)
- 取引態様
リフォーム年月 -
学校名 清水小学校
※学校名はあくまで目安になります。詳細は別途ご確認ください。
情報登録日 2026/04/22 情報更新日 2026/04/22

建物設備

建物設備
  • エアコン
  • 追焚機能
  • バス・トイレ別
  • 温水洗浄便座
  • ウォークインクローゼット
  • システムキッチン
  • ガスコンロ設置可
  • 室内洗濯機置場
  • フローリング
  • バルコニー
  • オートロック
  • TVモニタ付きインターホン
  • 宅配ボックス
  • 駐輪場

特記事項

特記事項

備考

備考

    24時間サポート料2200円(月額) オンライン内見・代理内見・現地集合可/初期費用クレカ決済導入/女性スタッフ対応可/エアコン・オートロック・2階以上・ウォークインCL・敷金礼金0円などどんな条件でもお探し可能!初期費用のご相談可能です
物件状況を問い合わせる

不動産業者情報

野村商事㈱

住所 名古屋市中区大須2ー22ー31 大須SHビル2F
電話番号 052-433-2088
FAX 052-433-2336
免許番号 愛知県知事免許 (1) 第0025541号
© 2026 あいぽっぽ