愛知の不動産探すなら あいぽっぽ > 検索条件 > 検索結果一覧 > 詳細情報

 詳細情報 愛知県名古屋市西区笠取町4丁目

貸倉庫

愛知県名古屋市西区笠取町4丁目

賃料/管理費/共益費 220万円 /(なし)/(なし)
敷金/礼金 なし / なし
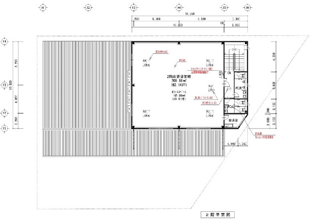
専有面積 754.94m²
間取り -
所在地 愛知県名古屋市西区笠取町4丁目67 KH
交通 名古屋市営地下鉄鶴舞線/庄内通駅 徒歩 9分
建物構造/築年数/階数 - / 2026年3月()/ 2階建

物件PR

地下鉄鶴舞線「庄内通」駅まで徒歩約9分!
南東角地で前面道路も十分な広さがある使いやすい立地です!
事務所・倉庫としてぜひご検討ください♪

物件詳細情報

賃料/管理費/共益費
220万円 /(なし)/(なし)
敷金 / 敷引 なし / なし 保証金 / 償却金 2万円 / 660万円
礼金 / 権利金 / 造作譲渡 なし / なし / なし その他費用 /
その他ランニングコスト
【その他費用】
なし
【その他ランニングコスト】
なし
土地権利 - 契約期間/借地期間 2年 / -
建ぺい率/容積率 - / - 用途地域/都市計画 - / -
地勢/地目 - / - 最適用途 -
接道状況
保証会社 - 住宅保険
学校名
※学校名はあくまで目安になります。詳細は別途ご確認ください。
情報登録日 2026/04/22 情報更新日 2026/04/22

建物設備

建物設備
  • 電気
  • 上水道
  • 下水道
  • 給湯
  • トイレ
  • トイレ2箇所
  • 個別空調

特記事項

特記事項
  • 事務所使用可
  • OAフロア

備考

備考
    火災保険要加入
    入居に伴う改装工事は貸主指定業者。オール電化。
物件状況を問い合わせる

不動産業者情報

㈱不動産SOS 蟹江本店

住所 海部郡蟹江町本町六丁目29番地
電話番号 0567-94-0086
FAX 0567-94-0039
ホームページ https://fudousan-sos.com/
メールアドレス
営業時間 AM9:30~PM5:30
定休日 年中無休(年末年始・GW・お盆はお休み)
免許番号 愛知県知事免許 (4) 第0021294号
業種および取扱業務 売買仲介、賃貸仲介、開発・分譲、不動産コンサルティング、賃貸不動産管理、相続相談、住宅ローン相談、空き家相談、任売・競売
㈱不動産SOS 蟹江本店

© 2026 あいぽっぽ