愛知の不動産探すなら あいぽっぽ > 検索条件 > 検索結果

土地購入(売地) 学区から探す 検索結果一覧

92

並び替え
一覧表示件数
所在地 愛知県瀬戸市水北町
交通 愛知環状鉄道/中水野駅 徒歩 27分(2105m)
価格 660万円
土地面積 2371.00m²
坪(坪単価) 717.23坪(0.9万円)
建ぺい率/容積率 60% / 200%

所在地 愛知県瀬戸市若宮町3丁目
交通 愛知環状鉄道/山口駅 徒歩 8分
価格 780万円
土地面積 164.17m²
坪(坪単価) 49.66坪(15.7万円)
建ぺい率/容積率 50% / 150%

所在地 愛知県瀬戸市東郷町
交通 名古屋鉄道瀬戸線/尾張瀬戸駅 徒歩 14分
価格 220万円
土地面積 79.93m²
坪(坪単価) 24.18坪(9.1万円)
建ぺい率/容積率 80% / 200%

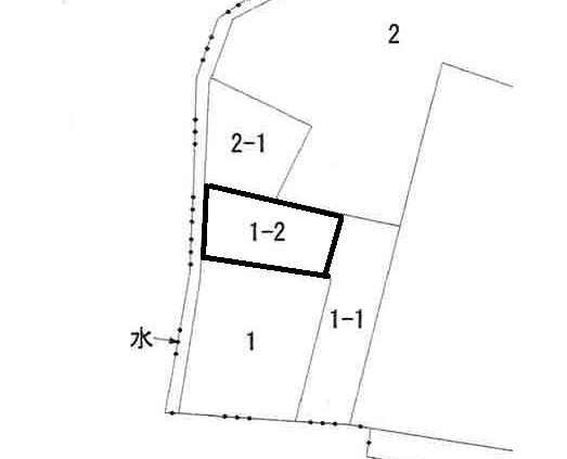
本物件と北側敷地(2番及び2番1)との境界線上に地域の排水用側溝があります。敷地内に上水道、都市ガスを引き込む場合は、別途費用が必要です。

所在地 愛知県瀬戸市中畑町
交通 バス停:八王子 徒歩 6分(400m)
価格 650万円
土地面積 216.00m²
坪(坪単価) 65.34坪(9.9万円)
建ぺい率/容積率 60% / 200%

所在地 愛知県瀬戸市八幡台8丁目
交通 愛知環状鉄道/山口駅 徒歩 14分
価格 1,500万円
土地面積 169.66m²
坪(坪単価) 51.32坪(29.2万円)
建ぺい率/容積率 50% / 150%

所在地 愛知県瀬戸市塩草が丘2丁目
交通 愛知環状鉄道/山口駅 徒歩 30分
バス停:塩草町西 徒歩 7分(500m)
価格 3,080万円
土地面積 640.00m²
坪(坪単価) 193.60坪(15.9万円)
建ぺい率/容積率 60% / 200%

所在地 愛知県瀬戸市品野町7丁目
交通 名古屋鉄道瀬戸線/尾張瀬戸駅 徒歩 55分
バス停:品野 徒歩 3分
価格 830万円
土地面積 427.60m²
坪(坪単価) 129.35坪(6.4万円)
建ぺい率/容積率 60% / 200%

所在地 愛知県瀬戸市窯町
交通 名古屋鉄道瀬戸線/尾張瀬戸駅 徒歩 52分
価格 1,200万円
土地面積 199.62m²
坪(坪単価) 60.39坪(19.9万円)
建ぺい率/容積率 60% / 100%

所在地 愛知県瀬戸市下陣屋町
交通 名鉄瀬戸線/新瀬戸駅 徒歩 20分
価格 6,500万円
土地面積 1356.00m²
坪(坪単価) 410.19坪(15.8万円)
建ぺい率/容積率 60% / 200%

所在地 愛知県瀬戸市陶生町
交通 名鉄瀬戸線/尾張瀬戸駅 徒歩 13分(1000m)
バス停:中橋 徒歩 5分(400m)
価格 800万円
土地面積 132.41m²
坪(坪単価) 40.05坪(20.0万円)
建ぺい率/容積率 60% / 200%

所在地 愛知県瀬戸市広之田町
交通 名鉄瀬戸線/尾張瀬戸駅 徒歩 80分
バス停:広之田 徒歩 3分
JR中央本線/高蔵寺駅 徒歩 0分
価格 1,300万円
土地面積 509.39m²
坪(坪単価) 154.09坪(8.4万円)
建ぺい率/容積率 60% / 200%

既存宅地

所在地 愛知県瀬戸市窯町
交通 名古屋鉄道瀬戸線/尾張瀬戸駅 (3900m)
価格 750万円
土地面積 166.26m²
坪(坪単価) 50.29坪(14.9万円)
建ぺい率/容積率 60% / 100%

所在地 愛知県瀬戸市幡野町
交通 愛知環状鉄道/瀬戸口駅 徒歩 15分
価格 1,580万円
土地面積 173.50m²
坪(坪単価) 52.48坪(30.1万円)
建ぺい率/容積率 60% / 150%

所在地 愛知県瀬戸市南山町1丁目
交通 名古屋鉄道瀬戸線/水野駅 徒歩 9分
価格 428万円
土地面積 257.00m²
坪(坪単価) 77.74坪(5.5万円)
建ぺい率/容積率 60% / 100%

所在地 愛知県瀬戸市山手町
交通 名古屋鉄道瀬戸線/水野駅 徒歩 11分
価格 700万円
土地面積 201.00m²
坪(坪単価) 60.80坪(11.5万円)
建ぺい率/容積率 60% / 100%

所在地 愛知県瀬戸市東松山町
交通 名古屋鉄道瀬戸線/新瀬戸駅 徒歩 11分
愛知環状鉄道/瀬戸市駅 徒歩 10分
価格 580万円
土地面積 125.61m²
坪(坪単価) 38.00坪(15.3万円)
建ぺい率/容積率 60% / 150%

瀬戸市東松山町 住宅用地

所在地 愛知県瀬戸市水無瀬町
交通 名古屋鉄道瀬戸線/瀬戸市役所前駅 徒歩 14分
名古屋鉄道瀬戸線/尾張瀬戸駅 徒歩 17分
価格 990万円
土地面積 188.09m²
坪(坪単価) 56.90坪(17.4万円)
建ぺい率/容積率 60% / 200%

所在地 愛知県瀬戸市仲洞町
交通 名古屋鉄道瀬戸線/尾張瀬戸駅 徒歩 21分
価格 1,780万円
土地面積 1177.08m²
坪(坪単価) 356.07坪(5.0万円)
建ぺい率/容積率 60% / 200%

陽当り・眺望良好!陶芸の町・瀬戸市の古き良き街並みです。近隣に工房やギャラリーなどが点在しのどかな地域です。

所在地 愛知県瀬戸市新郷町
交通 愛知環状鉄道/瀬戸口駅 (860m)
価格 280万円
土地面積 47.57m²
坪(坪単価) 14.39坪(19.5万円)
建ぺい率/容積率 60% / 200%

駐車場・資材置場向き

所在地 愛知県瀬戸市水北町
交通 愛知環状鉄道/中水野駅 徒歩 20分
愛知環状鉄道/瀬戸市駅 徒歩 45分
価格 260万円
土地面積 244.00m²
坪(坪単価) 73.81坪(3.5万円)
建ぺい率/容積率 50% / 80%

道路からの乗入口がないため造成工事が必要となります

92

並び替え
一覧表示件数
© 2026 あいぽっぽ